Спасибо за заказа! Наш менеджер свяжется с Вами.

баня "Изба"

р.
р.
Left
Right
Бани
Портфолио
Дома
О компании
Блог
Контакты
+7 (921) 44-888-30
Ежедневно с 9:00 до 19:00
Консультация
Главная / Каталог / Модульный дом 30
МОДУЛЬНЫЙ ДОМ 30
Основные характеристики:
Этажность:
Общая площадь:
Жилая площадь:
Утеплитель:
Высота потолков:
Материал каркаса:
Габариты дома:
1 этаж
40 м²
30 м²
Rockwool/Knauf 150-200 мм
от 1,96 до 2,5 метров
доски хвойных пород 150-200 мм
9,6 × 5 метров
Скачать презентацию
2 645 000 ₽
В кредит от 100 000 ₽/мес.
Оставить заявку
5 лет
Гарантии на каркас наших домов
2 года
Гарантии на инженерные системы
1 год
Обслуживания инженерных систем
— Чистовая отделка включена в стоимость
— Подходит для русской зимы
ОСТАВЬТЕ ЗАЯВКУ НА ДОМ 30
Заполните форму и наш специалист проконсультирует вас в ближайшее время
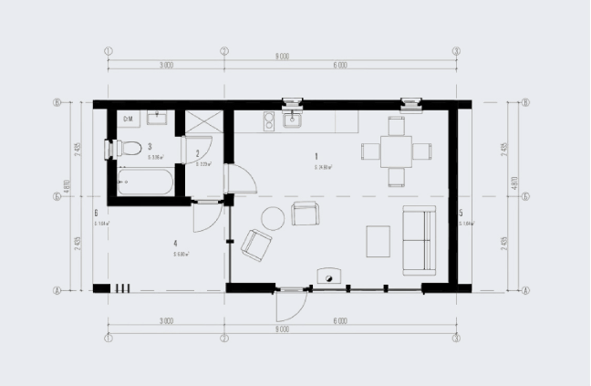
ПЛАНИРОВКА МОДУЛЬНОГО ДОМА 30М²
Тамбур — 2,23 м²
Ванная — 3,36 м²
Кухня-гостиная — 24,90 м²
Веранда — 6,90 м²
Дом общей площадью 40 м2 и жилой площадью 30 м2. Самая компактная модель линейки Modul2. Отличный вариант жилья для одного человека или молодой семьи.
КОМПЛЕКТАЦИЯ
от 30 дней
Стандарт
Производство дома
Комфорт
Монтаж
Наружная отделка
Двери
Полы
Внутренняя отделка
Кровля
Окна
Сантехника
Веранда
Фундамент
Узнать стоимость
2 645 000 ₽
+
+
+
+
+
+
+
+
+
-
+
+
+
+
+
+
+
+
+
+
10 дней
Монтаж на участке
1 день
Доставка и разгрузка